02262 / 61213
Hauptplatz 14, 2100 Korneuburg
office@groessing-immo.at

Korneuburg/Wien Nähe: Königsbrunn – extravagantes Einfamilienhaus – Neubau mit 115 m²

€ 595.000,00
Super
  • Objektarten: Häuser
  • Miete / Kauf: Kaufen
  • Stadt / Bezirk: Korneuburg Umgebung
  • Wohnnutzfläche: 115,31 m²
  • Baujahr: 2024/2025
  • Bezug ab: sofort möglich
  • Heizung: Fußbodenheizung mittels Luftwärmepumpe
  • Schlafzimmer: 3
  • HWB (kWh/m²/Jahr): 45,5
  • fGEE: 0,74
  • Provision: 3 % (zuzüglich 20% Ust)

Details

  • 3 Schlafzimmer
  • Abstellraum
  • Badezimmer mit Dusche und Badewanne
  • Blitzschutz System
  • diverse Busverbindungen vorhanden
  • Echtholzparkettböden
  • elektrische Rollläden
  • energieeffiziente Heizungs- und Kühlungssystem mittels Fußbodenheizung
  • Erstbezug
  • große Terrasse
  • hochwertige Ausstattung
  • Insektenschutzgitter
  • Luftwärmepumpe
  • massive Bauweise
  • massive Zwischenwände
  • moderne EWE-Küche samt Geräten
  • Nebengebäude
  • SAT-Anlage
  • Schrankraum
  • Sofortbezug
  • WC extra

Beschreibung

Nach erfolgreichem Projektverkauf im Nachbarort Enzersfeld folgt das Neubauprojekt in Königsbrunn – zwei top ausgestattete Einfamilienhäuser – für Haus 2 wurden bereits nette neue Eigentümer gefunden!

modernste Planung – hochwertige Materialien – großzügiges Raumangebot

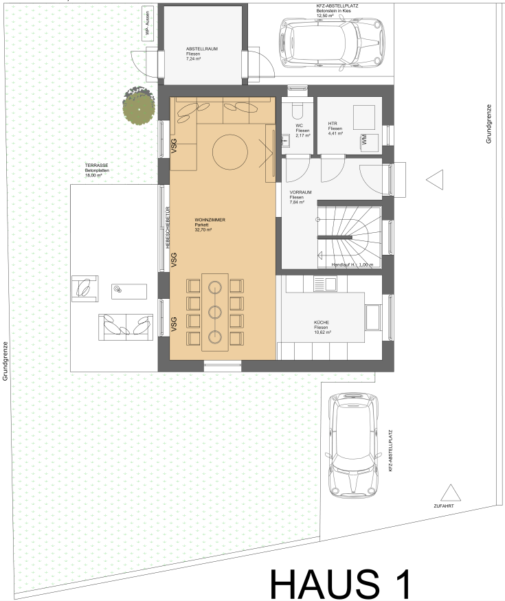
Eingebettet in die sanft hügelige Landschaft des Weinviertels befindet sich in Königsbrunn dieses neue und moderne Einfamilienhaus, das sich durch eine hochwertige Ausführung und modernen Wohnkomfort auszeichnet. Die Liegenschaft befindet sich in ruhiger Siedlungslage, angrenzend an Felder – trotz der ruhigen Umgebung ist eine gute Anbindung an Wien über die S1 und A22 gegeben. Mehrere Heurige und Winzer in der Nähe laden zu regionalen Speisen und Weinen ein.

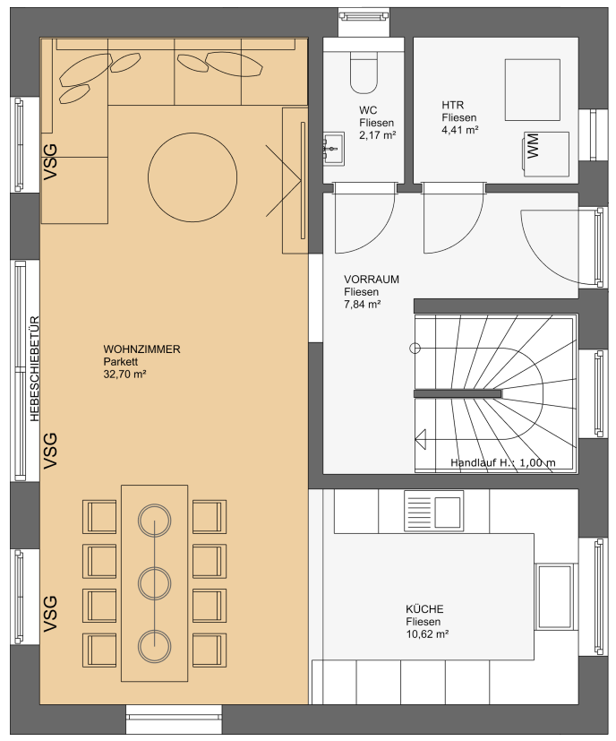
Das Haus überzeugt durch ein gut durchdachtes Raumkonzept und ein großzügiges Platzangebot auf zwei Ebenen. Im Erdgeschoss sind vom Vorraum aus der Technikraum mit Waschmaschinenanschluss, Fenster und Platz für einen Trockner sowie ein separates WC mit Handwaschbecken und Fenster erreichbar. Unter der Treppe befindet sich zusätzlicher Stauraum, der sich ideal als Garderobe oder Abstellfläche nutzen lässt.

Der offene Wohn-, Ess- und Küchenbereich mit einer Größe von etwa 42 m² bildet den Mittelpunkt des Hauses. Die Küchenanschlüsse sind bereits vorbereitet, eine neue Einbauküche wurde bewusst nicht installiert, um künftigen Eigentümern größtmögliche Gestaltungsfreiheit zu lassen. So können individuelle Vorstellungen und Bedürfnisse bei der Küchenplanung perfekt umgesetzt werden. Große, bodenebene Fensterflächen sorgen für viel Tageslicht und eine großflächige Hebe-Schiebetür führt auf die etwa 18 m² große Terrasse und in den westlich ausgerichteten Garten.

Im Obergeschoss sorgt das Pultdach mit einer variierenden Raumhöhe zwischen 2,30 m und 3,20 m für ein offenes Raumgefühl. Alle Schlafzimmer sind mit Eichenparkettböden ausgestattet, in einem der drei Schlafzimmer steht ein begehbarer Schrankraum zur Verfügung. Das Badezimmer ist ausgestattet mit einer bodenebenen Dusche, einer Badewanne, einem großem Doppelwaschbecken mit Unterschrank und Spiegelschrank sowie zwei Fenster in verschiedene Himmelsrichtungen.

Die Ausstattung umfasst eine Fußbodenheizung und -kühlung mittels Vaillant Luft-Wärmepumpe, Kunststofffenster mit 3-Scheibenverglasung, eine große Hebe-Schiebetür zur Terrasse, hochwertige Eichenparkettböden, elektrische Außenrollläden mit Funksteuerung, massive Bauweise mit 40 cm Ytong Thermo-Verbundsteinen, massive Zwischenwände, eine SAT-Anlage, Gartenbewässerung mit Beregnungscomputer, Blitzschutzsystem, Stabmattenzaun in Anthrazit sowie Pflastersteine mit Drainfugen bei der Zufahrt und Stellplätzen. Teilweise sind Insektenschutzgitter montiert und in jedem Zimmer ist ein LAN-Anschluss vorbereitet. Vorbereitungen für eine Alarmanlage, eine E-Ladestation, Solar- bzw. Photovoltaikanlage, eine Rasenroboterstation sowie eine Lehrverrohrung für eine Gegensprechanlage an der Grundstücksgrenze sind bereits getroffen.

Zum Haus gehören zwei Autoabstellplätze, die Errichtung eines Carports ist möglich. Die Terrasse ist verfliest und umfasst rund 18 m², der Garten verfügt über eine Rasenfläche von etwa 113 m². Ein Nebengebäude mit einer Fläche von etwas mehr als 7 m² bietet zusätzlichen Stauraum für Gartengeräte etc.

Dieses Einfamilienhaus verbindet moderne Architektur, hochwertige Ausstattung und eine naturnahe Lage im Weinviertel mit hervorragender Erreichbarkeit der Wiener Innenstadt.

Für weitere Informationen freuen wir uns auf Ihre Kontaktaufnahme!

Pläne

Erdgeschoss

Obergeschoss

Gesamtansicht